Slide 1Slide 2Slide 3Slide 4Slide 5Slide 6Slide 7Slide 8

Red Building Residence

Mixed-Use Residential Building with Bold Architectural Identity

This striking multi-family residential project explores the intersection of functional urban living and expressive architectural form. Characterized by its crisp white volumes sharply outlined with vivid red frames, the building commands attention through a play of geometry, voids, and material contrasts.

Architectural Concept

The massing is composed of interlocking rectilinear blocks, strategically offset to create dynamic volumes and shaded outdoor corridors. A vertical circulation shaft is elegantly wrapped in translucent red cladding, becoming a visual beacon and central organizer of the building's facade.

Each floor features generous balconies with minimalist railing systems that ensure unobstructed views and a seamless connection between indoor and outdoor spaces. The strong horizontal bands contrast with the vertical emphasis of the stair tower, creating a compelling architectural rhythm.

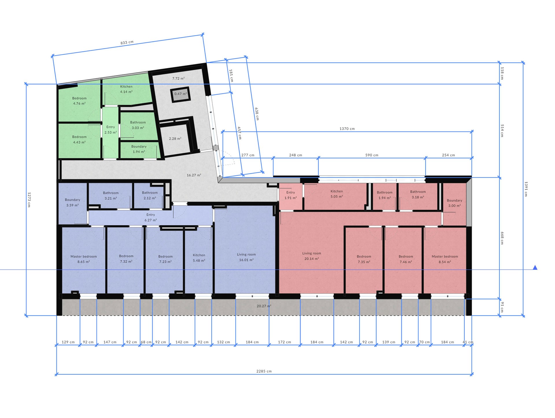
Functional Layout

The structure hosts multiple residential units with a variety of configurations, as illustrated in the floor plan:

  • 2 to 3-bedroom apartments with optimized surface areas.

  • Open-plan living spaces with direct balcony access.

  • Efficient vertical and horizontal circulation, minimizing internal corridors.

The building sits atop a podium garage that accommodates several private parking units, optimizing the site's slope and footprint. A staircase integrated into the side elevation ensures pedestrian access to both residential entries and landscaped zones.

Materials & Design Strategy

The project leverages:

  • Red metal cladding to create a bold urban identity.

  • White plaster facades for thermal reflectivity and minimalist appeal.

  • Floor-to-ceiling windows to maximize daylighting and enhance energy efficiency.

Sustainability is integrated through passive solar gain control, natural ventilation, and compact volumetric design.

Click to load the project in 3D

Click to load the project in 3D

Plus de plans